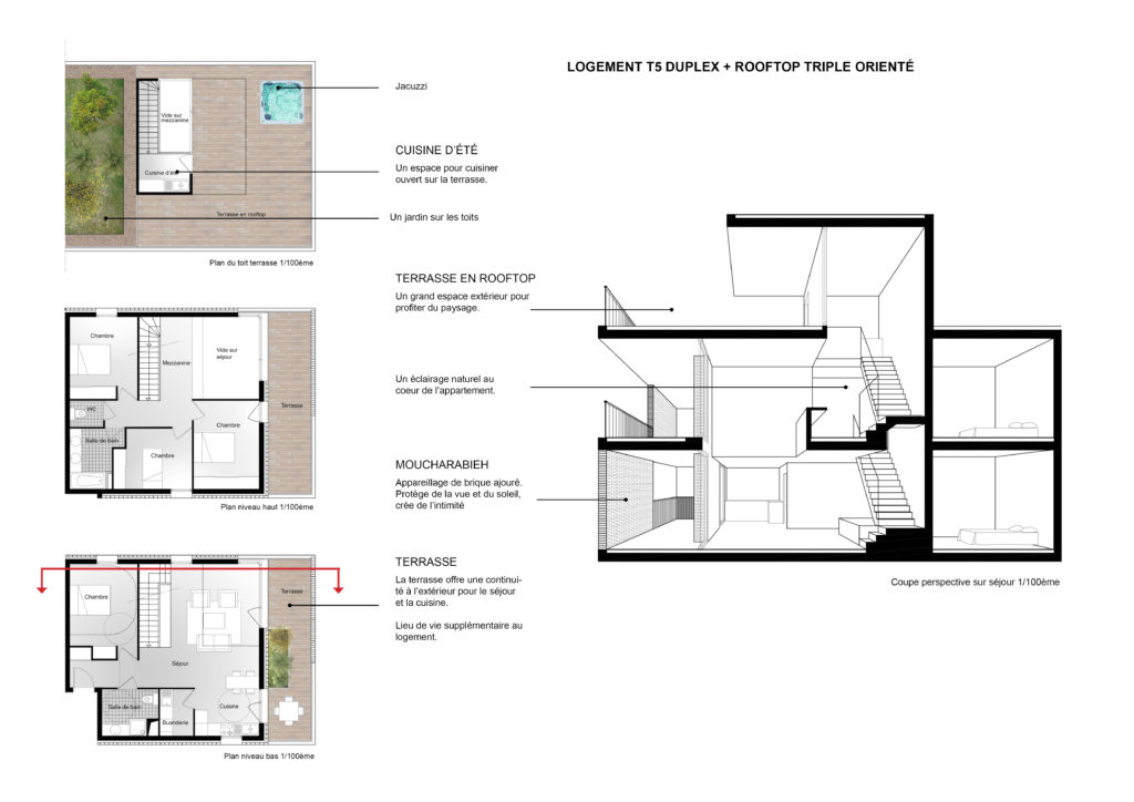
Zac de la Cartoucherie Ilot 3.2, 200 Logements - Toulouse Metropole
A la croisée de l’Atlantique, de la Méditerranée et des Pyrénées, le pays toulousain est un territoire de confluence, de rencontre, de brassage, caractérisé par une diversité de milieux qui constitue une source d’inspiration. Cette diversité s’illustre dans le présent projet par deux ensembles. La prise en compte des conditions climatiques du site, et la volonté de proposer un projet structurant pour l’espace public ont prévalu dans le choix d’implantation des bâtiments et des divers accès.
Le projet est scindé en 6 bâtiments. Chacun des bâtiments présente à minima une façade en alignement sur l’espace public. Le projet se présente dans sa hauteur (R+9) la plus importante dans l’angle nord-ouest de la parcelle et dans sa hauteur la plus basse dans l’angle sud Est (R+1). Avec cette disposition, le projet respecte les prescriptions urbaines de la zone. Les bâtiments sont implantés en ordre continu sur la façade ouest ainsi qu’aux angles nord-ouest et nord-est. Ils sont implantés en ordre discontinue le long des rues Centre Nord et Centre Est. De part et d’autre de la venelle le bâti est implanté avec le retrait minimum réglementaire.
La continuité visuelle dans l’axe nord-sud définie dans le cadre du projet urbain est préservé. La discontinuité du bâti le long des rues Centre Nord et Centre Est et certaines transparences du bâti permettent une porosité dans la perception de l’espace entre l’espace public et le cœur d’îlot. L’ensemble des rez de chaussées sont actifs et participent à l’attractivité de l’espace public du quartier. L’objectif est de créer, sur l’ilot 3.2 de la ZAC de la Cartoucherie, un projet qui valorise l’espace public et qui dialogue avec le reste du quartier tout en offrant des conditions de vie agréables. Le projet doit être porteur des conditions du vivre ensemble.
Le projet respecte la logique d’implantation du plan d’urbanisme. Il se décompose en 6 corps de bâtiment. Afin de renforcer le caractère urbain de l’espace public, chacun des corps de bâtiment présente à minima, une façade implantée en alignement sur la rue. Cet alignement est discontinu, aussi bien pour maintenir les porosités visuelles nécessaires entre l’espace public et l’îlot que pour produire une volumétrie bâtie riche.
- Maitre d’ouvrage : Sporting Finances
- Site : Zac de la Cartoucherie Ilot 3.2 - Toulouse Metropole
- Equipe de maitrise d’œuvre : Comte & Vollenweider - Passelac & Roques
- Surface de plancher : 13 700 M²
1 200 M² d'activité
12 500 M² pour 200 logements environ - Livraison : Concours
- Budget : 18 M€














